Съвременната кухня трябва да бъде не просто красиво помещение, а ефективна и приятна зона за готвене и събирания с близките. Кухня Зума напълно отговаря на тези изисквания - тя е стилна, модерна и отлично организирана.
Горния ред шкафове са удобни и функционални - побират малко изполваните уреди и съдове. Шкаф стандартен размер за вграждане на хладилник - за да бъде всичко в синхрон. Шкаф за вграждане на фърна и микровълнова. Долния ред шкафове е функционално подбран - перфектната комбинация на рафтове и чекмеджета, за да поберат често използваните уреди, подправки и ипосуда. Трите витринни шкафа са с опушени матови стъкла 4 мм.
Страхотната модерна комбинация между Мока и Олив мат, придава на кухнята характер и уют.
Кухнята е изработена от 16 мм ПДЧ корпус и 18 мм фолиран МДФ. Предимството на фолирания МДФ е, че материалът покрива цялата повърхност, включително и кантовете на детайла, т.е. материалът е облечен изцяло. Термоплотът идва при теб цял, за да можеш да го пригодиш спрямо твоите предпочитания и е в цвят Травертин Тоскано. Всички врати и чекмеджета са с механизъм за плавно затваряне.
📐 Размери:
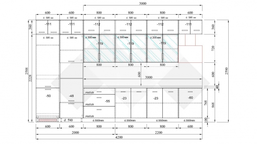
Долен ред: Д: 420 см. Ш: 60 см. В: 223 см.
Горен ред: Д: 420 см. Ш: 59 см. В: 108 см.
Термоплот: Д: 300 см. Ш: 60 см. В: 3.8 см.
Цвят: олив мат с мока
Пакети:
Пакет 1: 80/12/46 см., 19.5 кг.
Пакет 2: 77/4/40 см., 6.6 кг.
Пакет 3: 80/12/46 см., 19.5 кг.
Пакет 4: 77/4/40 см., 6.6 кг.
Пакет 5: 211/3/57 см., 26.2 кг.
Пакет 6: 73/14/62 см., 30.8 кг.
Пакет 7: 111/4/60 см., 16 кг.
Пакет 8: 312/3/57 см., 26 кг.
Пакет 9: 75/8/57 см., 16.5 кг.
Пакет 10: 136/4/60 см., 18.8 кг.
Пакет 11: 81/11/63 см., 22.8 кг.
Пакет 12: 77/9/53 см., 18.8 кг.
Пакет 13: 80/6/31 см., 8.8 кг.
Пакет 14: 75/9/46 см., 16 кг.
Пакет 15: 78/3/61 см., 6.6 кг.
Пакет 16: 58/8/58 см., 13.1 кг.
Пакет 17: 37/4/31 см., 3.1 кг.
Пакет 18: 58/8/58 см., 13.1 кг.
Пакет 19: 37/4/31 см., 3.1 кг.
Пакет 20: 58/8/58 см., 13.1 кг.
Пакет 21: 37/4/31 см., 3.1 кг.
Пакет 22: 85/6/58 см., 15.6 кг.
Пакет 23: 41/4/37 см., 4.2 кг.
Пакет 24: 85/6/58 см., 15.6 кг.
Пакет 25: 41/4/37 см., 4.2 кг.
Пакет 26: 85/6/58 см., 15.6 кг.
Пакет 27: 41/4/37 см., 4.2 кг.
Пакет 28: 77/13/28 см., 13.1 кг.
Пакет 29: 73/52/4 см., 4.4 кг.
Пакет 30: 77/13/28 см., 13.1 кг.
Пакет 31: 77/13/28 см., 13.1 кг.
Пакет 32: 60/4/300 см., 45 кг.
Пакет 33: 15/30/15 см., 2 кг.
Забележка: Възможно е отклонение от действителните цветове на дамаските/декорите с тези на екрана на твоето устройство.
Гаранция: 24 месеца
КухняЗумаолив мат с мока прави
Съвременната кухня трябва да бъде не просто красиво помещение, а ефективна и приятна зона за готвене и събирания с близките. Кухня Зума напълно отговаря на тези изисквания - тя е стилна, модерна и отлично организирана.
Горния ред шкафове са удобни и функционални - побират малко изполваните уреди и съдове. Шкаф стандартен размер за вграждане на хладилник - за да бъде всичко в синхрон. Шкаф за вграждане на фърна и микровълнова. Долния ред шкафове е функционално подбран - перфектната комбинация на рафтове и чекмеджета, за да поберат често използваните уреди, подправки и ипосуда. Трите витринни шкафа са с опушени матови стъкла 4 мм.
Страхотната модерна комбинация между Мока и Олив мат, придава на кухнята характер и уют.
Кухнята е изработена от 16 мм ПДЧ корпус и 18 мм фолиран МДФ. Предимството на фолирания МДФ е, че материалът покрива цялата повърхност, включително и кантовете на детайла, т.е. материалът е облечен изцяло. Термоплотът идва при теб цял, за да можеш да го пригодиш спрямо твоите предпочитания и е в цвят Травертин Тоскано. Всички врати и чекмеджета са с механизъм за плавно затваряне.
📐 Размери:
Долен ред: Д: 420 см. Ш: 60 см. В: 223 см.
Горен ред: Д: 420 см. Ш: 59 см. В: 108 см.
Термоплот: Д: 300 см. Ш: 60 см. В: 3.8 см.
Цвят: олив мат с мока
Пакети:
Пакет 1: 80/12/46 см., 19.5 кг.
Пакет 2: 77/4/40 см., 6.6 кг.
Пакет 3: 80/12/46 см., 19.5 кг.
Пакет 4: 77/4/40 см., 6.6 кг.
Пакет 5: 211/3/57 см., 26.2 кг.
Пакет 6: 73/14/62 см., 30.8 кг.
Пакет 7: 111/4/60 см., 16 кг.
Пакет 8: 312/3/57 см., 26 кг.
Пакет 9: 75/8/57 см., 16.5 кг.
Пакет 10: 136/4/60 см., 18.8 кг.
Пакет 11: 81/11/63 см., 22.8 кг.
Пакет 12: 77/9/53 см., 18.8 кг.
Пакет 13: 80/6/31 см., 8.8 кг.
Пакет 14: 75/9/46 см., 16 кг.
Пакет 15: 78/3/61 см., 6.6 кг.
Пакет 16: 58/8/58 см., 13.1 кг.
Пакет 17: 37/4/31 см., 3.1 кг.
Пакет 18: 58/8/58 см., 13.1 кг.
Пакет 19: 37/4/31 см., 3.1 кг.
Пакет 20: 58/8/58 см., 13.1 кг.
Пакет 21: 37/4/31 см., 3.1 кг.
Пакет 22: 85/6/58 см., 15.6 кг.
Пакет 23: 41/4/37 см., 4.2 кг.
Пакет 24: 85/6/58 см., 15.6 кг.
Пакет 25: 41/4/37 см., 4.2 кг.
Пакет 26: 85/6/58 см., 15.6 кг.
Пакет 27: 41/4/37 см., 4.2 кг.
Пакет 28: 77/13/28 см., 13.1 кг.
Пакет 29: 73/52/4 см., 4.4 кг.
Пакет 30: 77/13/28 см., 13.1 кг.
Пакет 31: 77/13/28 см., 13.1 кг.
Пакет 32: 60/4/300 см., 45 кг.
Пакет 33: 15/30/15 см., 2 кг.
Забележка: Възможно е отклонение от действителните цветове на дамаските/декорите с тези на екрана на твоето устройство.
Гаранция: 24 месеца















